À propos
Catalogue général
Recherche avancée
Accueil
>
Catalogue général
> Martin, René (18..-19.. ; ingénieur) - Traction électrique
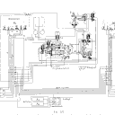
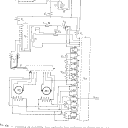
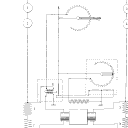
Traction électrique
NOTICE DÉTAILLÉE
ACCÈS AUX IMAGES
TABLE DES MATIÈRES ABRÉGÉE
TABLE DES MATIÈRES INTÉGRALE
TABLE DES ILLUSTRATIONS
TEXTE OCÉRISÉ
EXPORT
RECHERCHER DANS CE TITRE